Overview
- Aggiornato:
- Settembre 30, 2025
- 3 Camere da Letto
- 1 Bathrooms
- 105 m2
Descrizione
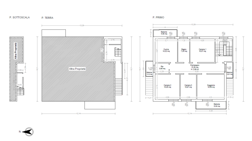
RIF. V163 – Un’opportunità unica per chi cerca la casa perfetta a due passi dal mare.
Proponiamo la vendita in esclusiva di un ampio appartamento al primo e ultimo piano, situato nella richiestissima zona Conchiglia, a pochi passi dalla spiaggia.
La proprietà fa parte di un piccolo edificio di sole quattro unità, è libera su quattro lati ed è caratterizzata da un’ottima esposizione che garantisce luce naturale e aerazione durante tutto l’arco della giornata.
L’accesso è indipendente, attraverso un giardinetto privato e una scala esterna, con ulteriore vano scala interno.
L’appartamento si apre su un corridoio centrale dal quale si accede a tutti gli ambienti: un soggiorno spazioso con zona pranzo e balcone, una cucina abitabile con secondo balcone, tre camere da letto di ampie dimensioni, un bagno finestrato, un ripostiglio e un ulteriore balcone nella zona d’ingresso.
Completano la proprietà due vani sottoscala, uno interno e uno esterno, ideali come spazi di servizio o rimessaggio.
L’immobile è in buone condizioni strutturali ma necessita di lavori di ammodernamento, offrendo la possibilità di personalizzare gli ambienti secondo le proprie esigenze. Attualmente non è presente l’impianto di riscaldamento.
Una soluzione ideale per chi cerca ampi spazi in una zona residenziale vicina al mare, ben servita e molto richiesta.
Contattaci per maggiori informazioni o per fissare una visita.
A+
A
B
C
D
E
F
G
H
















































